Bénéficiez des services de nos partenaires locaux soigneusement sélectionnés
pour vous accompagner dans votre parcours d'achat immobilier

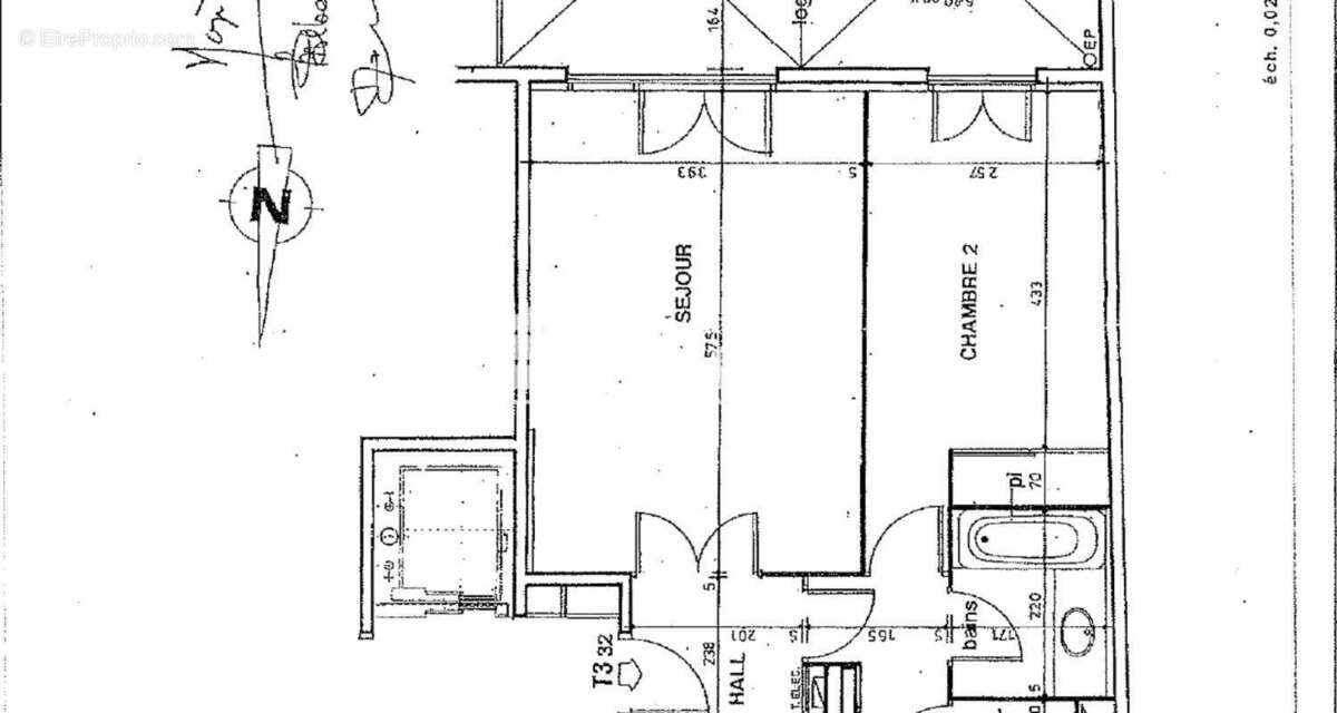
À VENDRE - LYON 3ème (Rue Dunoir) - Spacieux T3 de 76 m² avec grand balcon

— Lyon-3e 69003 —
369 000 €
76 m²
3 pièces

Nos partenaires locaux
Idéalement situé au 3 ème étage avesc ascenseur d'un immeuble de qualité, au cœur d'un quartier prisé de Lyon 3ème et à 2 pas des transports rapides et du tribunal, venez découvrir cet appartement T3 de 76 m² au sein d'une copropriété de très bonne qualité construite en 2001.

L'appartement se compose d'une entrée desservant un séjour lumineux de 23 m², qui s'ouvre sur un grand balcon de 10 m² offrant un véritable espace de vie extérieur. Vous profiterez également d'une grande cuisine séparée de 11,50 m², particulièrement fonctionnelle grâce à son arrière-cuisine attenante.

La partie nuit, bien distincte, propose deux grandes chambres ( dont une sur balcon) avec parquet au sol et des rangements intégrés, garantissant calme et confort.

Une cave complète ce bien. Il est également possible d'acquérir un garage fermé en supplément dans l'immeuble.

Informations importantes : L'immeuble est édifié sur un terrain appartenant aux Hospices Civils de Lyon (HCL)

Les atouts de ce bien :

Emplacement de choix à Lyon 3ème
Grand balcon de 10 m²
Pièces spacieuses et agencement fonctionnel
Immeuble récent et de bon standing
Calme et lumineux
Cave incluse et possibilité d'acquérir un garage
Ce bien représente une excellente opportunité pour ceux qui recherchent le confort, l'espace et un extérieur en ville.

Pour plus d'informations ou pour organiser une visite, n'hésitez pas à nous contacter.
Voir plus

Référence: 00752934
Bien en copropriété. Nombre de lots : 14. Charges de copropriété : 242 €.
Honoraires à la charge du vendeur.
DPE
A
B
C
D
E
F
G
GES
A
B
C
D
E
F
G
Appartement à LYON-3E
Appartement à LYON-3E
Appartement à LYON-3E
Appartement à LYON-3E
Appartement à LYON-3E
Appartement à LYON-3E
Appartement à LYON-3E
Appartement à LYON-3E
Appartement à LYON-3E
Appartement à LYON-3E
Appartement à LYON-3E
Appartement à LYON-3E
Géorisques

Les informations sur les risques auxquels ce bien est exposé sont disponibles sur le site Géorisques : www.georisques.gouv.fr

Ce site est protégé par hCaptcha Politique de confidentialité et Conditions d’utilisation s’appliquent.

En poursuivant votre navigation sans modifier vos paramètres, vous acceptez l'utilisation de cookies susceptibles de réaliser des statistiques de visite. Cliquez ici pour plus d'informations