Bénéficiez des services de nos partenaires locaux soigneusement sélectionnés
pour vous accompagner dans votre parcours d'achat immobilier

Immeuble de rapport mixte

— Carmaux 81400 —
150 000 €
360 m²

Nos partenaires locaux
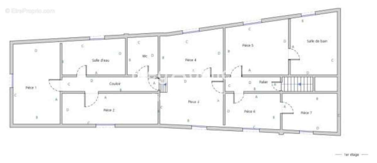
A 15 minutes d'Albi à l'entrée de la commune de CARMAUX, très bel ensemble immobilier mixte et évolutif très bien entretenu. Bâti sur deux niveaux, l'immeuble comprend en rez de chaussée un local commercial de type restaurant de 192 ² dont caves et réserves, actuellement libre et loué auparavant 840 €/mois. Les locaux propres et bon état laissent la possibilité de créer à terme 2 logements, un T3 de 85 m² et un T4 de 113 m² (ou un T3 de 72 m² et un local professionnel 2 pièces de 40 m²). L'étage est actuellement composé d'un grand et lumineux T7 de 143 m² parfaitement insonorisé et pouvant grâce à des entrées séparées être divisé en 2 logements T4 de 97 m² et T2 de 43 m². L'ensemble selon la configuration envisagée représenterait un revenu locatif d'environ 1500 à 2300€/mois soit 18.000 à 27.700 €/an . L'ensemble peut se prêter tout simplement aussi à de la résidence principale autofinancée par la location du local commercial...Taxe foncière 2300 €.
Situé sur la route d'Albi, excellente visibilité à proximité immédiate des commerces, stationnement gratuit à proximité. Un très bel immeuble à fort potentiel à découvrir rapidement ! Un dossier d'information avec détail rendement locatifs et photos supplémentaires sera adressé après échange téléphonique, n'hésitez pas à me contacter !

Les informations sur les risques auxquels ce bien est exposé sont disponibles sur le site Géorisques : www.georisques.gouv.fr
Prix de vente : 150 000 €
Honoraires charge vendeur

Contactez votre consultant megAgence : Pierre PERNOT, Tél. : [Coordonnées masquées], E-mail : [Coordonnées masquées] - EI - Agent commercial immatriculé au RSAC de ALBI sous le numéro 489 642 116
Voir plus

Référence: 198673
Honoraires à la charge du vendeur.
DPE
A
B
C
D
E
F
G
GES
A
B
C
D
E
F
G
Appartement à CARMAUX
Appartement à CARMAUX
Appartement à CARMAUX
Appartement à CARMAUX
Appartement à CARMAUX
Appartement à CARMAUX
Appartement à CARMAUX
Appartement à CARMAUX
Appartement à CARMAUX
Appartement à CARMAUX
Appartement à CARMAUX
Appartement à CARMAUX
Appartement à CARMAUX
Appartement à CARMAUX
Appartement à CARMAUX
Géorisques

Les informations sur les risques auxquels ce bien est exposé sont disponibles sur le site Géorisques : www.georisques.gouv.fr

Ce site est protégé par hCaptcha Politique de confidentialité et Conditions d’utilisation s’appliquent.

En poursuivant votre navigation sans modifier vos paramètres, vous acceptez l'utilisation de cookies susceptibles de réaliser des statistiques de visite. Cliquez ici pour plus d'informations