Bénéficiez des services de nos partenaires locaux soigneusement sélectionnés
pour vous accompagner dans votre parcours d'achat immobilier

T2 Docks libres II

— Marseille-3e 13003 —
100 000 €
40 m²
2 pièces
parkingbalcon/terrasse

Nos partenaires locaux
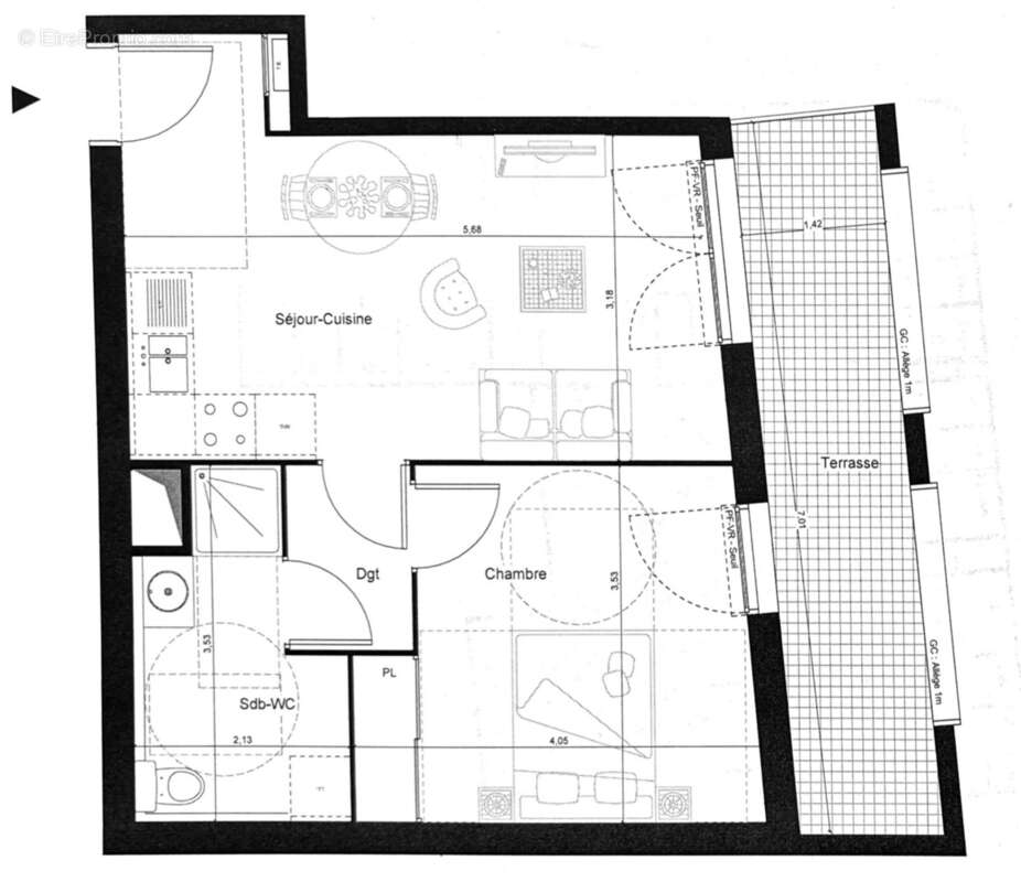
Appartement de type 2 avec terrasse - Rentabilité brute 7%
Cet appartement est situé dans une résidence récente DOCKS LIBRES II, réalisé par NEXITY en 2019, à 200 mètres du métro National (Ligne 2) et à 5 minutes du tramway. Cette résidence est implantée dans le 3ème arrondissement de Marseille, quartier de St Mauront, à quelques minutes du Vieux Port, du quartier de la Joliette et des Terrasses du port.
L'appartement se compose d'une pièce de vie avec cuisine équipée ouvrant sur une grande terrasse de 10m2, d'une chambre avec dressing et d'une salle d'eau spacieuse avec wc.
Ascenseur et Accès PMR Loyer 615 €/ mois hors charges
Sera vendu LIBRE.
Proximité des autoroutes A55 et A7 et du Port Maritime de Marseille Place de parking en sus
Pour toute information et demande de visite, merci de contacter:
Co VICARI (RSAC 892 174 434)
[Coordonnées masquées]
tel: [Coordonnées masquées]
Karine BINISTI (RSAC 879 249 761)
[Coordonnées masquées]
tel: [Coordonnées masquées] - Les informations concernant les risques liés à ce bien sont disponibles sur georisques.gouv.fr.- Présentation d'une pièce d'identité requise selon l'article L.561.5 du Code Monétaire et Financier pour l'organisation de la visite.
Voir plus

Référence: 3613
Bien en copropriété. Nombre de lots : 191. Charges de copropriété : 892 €.
Honoraires à la charge du vendeur.
Barème des honoraires
DPE
A
B
C
D
E
F
G
GES
A
B
C
D
E
F
G
Appartement à MARSEILLE-3E
Appartement à MARSEILLE-3E
Appartement à MARSEILLE-3E
Appartement à MARSEILLE-3E
Appartement à MARSEILLE-3E
Appartement à MARSEILLE-3E
Géorisques

Les informations sur les risques auxquels ce bien est exposé sont disponibles sur le site Géorisques : www.georisques.gouv.fr

Ce site est protégé par hCaptcha Politique de confidentialité et Conditions d’utilisation s’appliquent.

En poursuivant votre navigation sans modifier vos paramètres, vous acceptez l'utilisation de cookies susceptibles de réaliser des statistiques de visite. Cliquez ici pour plus d'informations