Bénéficiez des services de nos partenaires locaux soigneusement sélectionnés
pour vous accompagner dans votre parcours d'achat immobilier

Appartement Lyon 1 pièce(s) 22.59 m² avec terrasse

— Lyon-3e 69003 —
210 000 €
22 m²
1 pièce
balcon/terrassejardin

Nos partenaires locaux
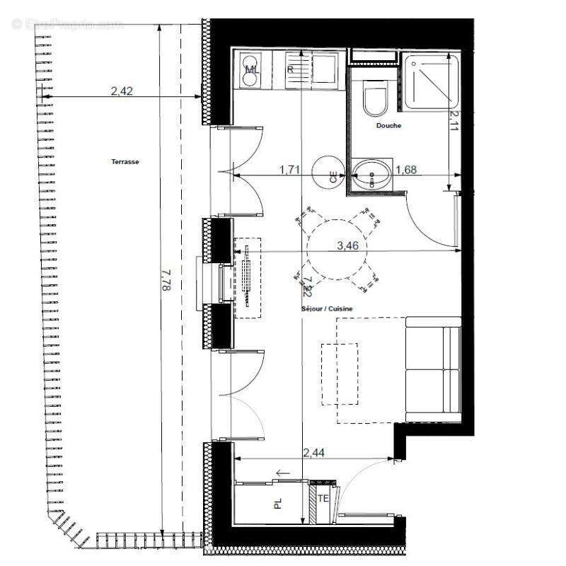
Je vous propose un bien rare sur LYON 69003, un magnifique studio de 22.59 M² et sa terrasse de 18.30 M² exposé plein sud. (livraison immédiate)

Il se compose d'un séjour / cuisine de 19.22 M² donnant sur la terrasse de 183.30 M², une salle d'eau de 3.37 M² avec WC.

Cet appartement se situe dans une résidence intimiste entièrement refaite.

Située à l'extrémité du quartier très prisé de Montchat, la résidence est également reliée aux grands axes et à proximité immédiate des transports en commun :

- Le Tram T6 (à moins de deux minutes à pied) rejoint le Métro D en deux arrêts.

- Le Bus C8 (en face de la résidence) rejoint le Métro D en cinq minutes.

- Le Bus C26 (à 650 mètres) traverse le quartier Montchat puis dessert le campus de la Doua et la Cité internationale.

- Le Métro D (à 15 minutes à pied) relie l'hypercentre de Lyon en quatre arrêts.
Les pôles hospitaliers et universitaires aux environs assurent une très forte demande locative.

Si vous cherchez un bien moderne et atypique !!!! Ce bien est pour vous.
Pensé pour votre confort, cet appartement offre de vastes espaces, tous orientés pour vous faire bénéficier d'une belle luminosité tout au long de la journée.

DPE non requis.
Prix de vente: 210.000 euros
Mandat 439108
Informations, réservations auprès de votre conseiller commercialisateur Coll Thierry pour ineuf-com au [Coordonnées masquées] ou par courriel à [Coordonnées masquées] agissant sous le statut d'agent en portage salarial auprès de la SAS PROPRIÉTÉS PRIVÉES, Réseau national immobilier, au capital de 40000 euros, 44 ALLÉE DES CINQ CONTINENTS - ZAC LE CHÊNE FERRÉ, 44120 VERTOU, RCS Nantes n° 487 624 777 00040, RCS 487 624 777 - Le professionnel vous conseille, garantit et sécurise votre projet immobilier.
Ce bien est soumis au statut de copropriété.
Nombre de lots sur l'ensemble de la copropriété : 6
Copropriété de 6 lots - dont 6 lots habitation.

Charges annuelles : 600 euros.
Voir plus

Référence: 2803TC439108TCL
Bien en copropriété. Nombre de lots : 6. Charges de copropriété : 50 €.
Honoraires à la charge du vendeur.
DPE
A
B
C
D
E
F
G
Appartement à LYON-3E
Appartement à LYON-3E
Appartement à LYON-3E
Appartement à LYON-3E
Appartement à LYON-3E
Appartement à LYON-3E
Appartement à LYON-3E
Appartement à LYON-3E
Géorisques

Les informations sur les risques auxquels ce bien est exposé sont disponibles sur le site Géorisques : www.georisques.gouv.fr

Ce site est protégé par hCaptcha Politique de confidentialité et Conditions d’utilisation s’appliquent.

En poursuivant votre navigation sans modifier vos paramètres, vous acceptez l'utilisation de cookies susceptibles de réaliser des statistiques de visite. Cliquez ici pour plus d'informations