Bénéficiez des services de nos partenaires locaux soigneusement sélectionnés
pour vous accompagner dans votre parcours d'achat immobilier

Vente maison 140 m² Colomiers (31770)

— Colomiers 31770 —
394 000 €
140 m² / 380 m²
4 pièces
parkingbalcon/terrasse

Nos partenaires locaux
Colomiers (31770)
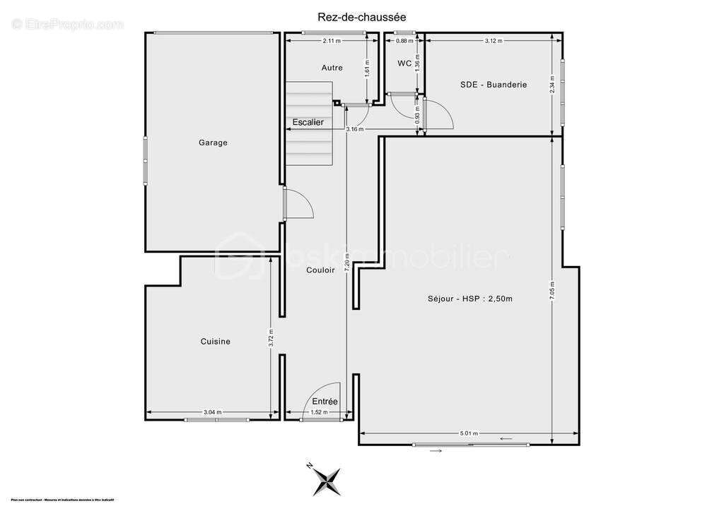
4 pièces 3 chambres 140 m² Terrain 380 m². Idéalement située à proximité immédiate des transports, des commerces et des établissements scolaires, cette charmante maison de 140 m² habitables saura vous séduire par ses prestations et sa fonctionnalité.

Dès l'entrée, vous découvrez un espace accueillant desservant un lumineux séjour exposé sud-ouest, offrant une belle qualité de vie au quotidien. La cuisine indépendante, entièrement aménagée et équipée, allie confort et praticité. Le rez-de-chaussée comprend également une salle d'eau faisant office de buanderie ainsi qu'un WC séparé.

À l'étage, l'espace nuit se compose d'une salle de bain avec double vasque, d'un second WC indépendant, d'un coin bureau idéal pour le télétravail, ainsi que de trois chambres spacieuses et lumineuses, chacune bénéficiant de son propre balcon.

La maison dispose de nombreux rangements intégrés, optimisant parfaitement les volumes.

À l'extérieur, vous profiterez d'un agréable espace ainsi que d'une remise permettant du stockage supplémentaire.

Côté prestations : volets électriques avec commande centralisée, double vitrage, pompe à chaleur air/eau, climatisation, ballon thermodynamique pour l'eau chaude… tout a été pensé pour un confort optimal et une bonne performance énergétique.

Un garage avec portail automatique complète ce bien.

Taxe foncière : 2 200 €

Cette annonce référence 327598 vous est présentée par votre agent commercial BSK Immobilier DOMINIQUE BOUILLÉ (EI) immatriculé au RSAC de TOULOUSE (31000) sous le numéro 89329471000015.

Prix du bien : 394 000,00 €
Les honoraires d'agence sont à la charge du vendeur.

A propos des performances énergétiques :
Date de réalisation du diagnostic énergétique : 11/04/2025
Score DPE : 116 kWhEP/m²/an
Score GES : 4 kgepCO2/m²/an
Montant estimé des dépenses annuelles d'énergie pour un usage standard : entre 1510.00 € et 2120.00 € par an. Prix moyens des énergies indexés sur l'année 2021 (abonnements compris).

Les informations sur les risques auxquels ce bien est exposé sont disponibles sur le site Géorisques : www.georisques.gouv.fr
Voir plus

Référence: 327598
Honoraires à la charge du vendeur.
DPE
A
B
C
D
E
F
G
GES
A
B
C
D
E
F
G
Maison à COLOMIERS
Maison à COLOMIERS
Maison à COLOMIERS
Maison à COLOMIERS
Maison à COLOMIERS
Maison à COLOMIERS
Maison à COLOMIERS
Maison à COLOMIERS
Maison à COLOMIERS
Maison à COLOMIERS
Maison à COLOMIERS
Maison à COLOMIERS
Maison à COLOMIERS
Maison à COLOMIERS
Maison à COLOMIERS
Maison à COLOMIERS
Maison à COLOMIERS
Maison à COLOMIERS
Maison à COLOMIERS
Maison à COLOMIERS
Maison à COLOMIERS
Maison à COLOMIERS
Géorisques

Les informations sur les risques auxquels ce bien est exposé sont disponibles sur le site Géorisques : www.georisques.gouv.fr

Ce site est protégé par hCaptcha Politique de confidentialité et Conditions d’utilisation s’appliquent.

En poursuivant votre navigation sans modifier vos paramètres, vous acceptez l'utilisation de cookies susceptibles de réaliser des statistiques de visite. Cliquez ici pour plus d'informations