Bénéficiez des services de nos partenaires locaux soigneusement sélectionnés
pour vous accompagner dans votre parcours d'achat immobilier

Appartement idéal profession libérale + habitation - Ampère

— Lyon-2e 69002 —
755 000 €
159 m²
5 pièces
ascenseur

Nos partenaires locaux
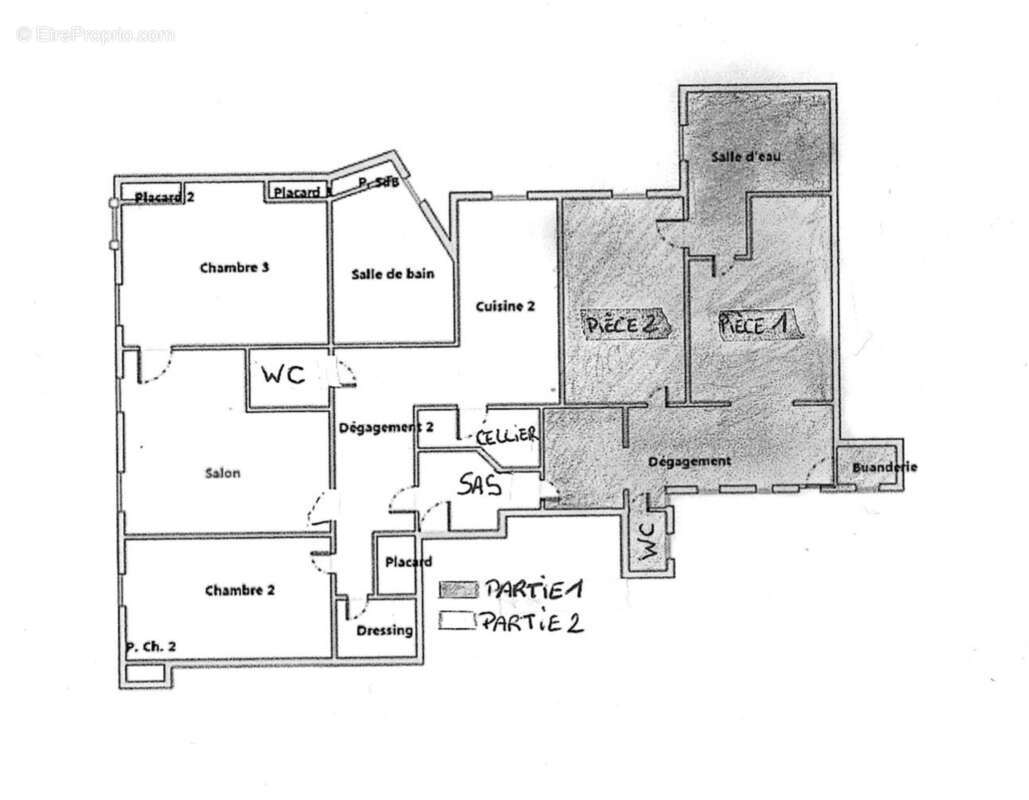
La configuration en deux ailes distinctes de cet appartement rénové constitue un véritable atout : Une première partie de 42.71 m² Carrez (aile droite sur le plan ci-joint) se prête idéalement à l'exercice d'une profession libérale, avec la possibilité d'y aménager un bureau, une salle d'attente ainsi qu'une cuisine/salle d'eau/salle de repos. La seconde partie de 116,98 m² Carrez (aile gauche sur le plan ci-joint) offre un cadre de vie confortable et indépendant. Il présente un agréable séjour ainsi qu'une cuisine indépendante et spacieuse avec son cellier attenant. Deux belles chambres, une grande salle de bains, un dressing et des WC séparés complètent le tout. Le magnifique parquet, entièrement restauré, confère au bien une élégance intemporelle. Équipé d'une climatisation réversible et bénéficiant d'une bonne isolation, l'appartement assure un confort optimal en toute saison. A seulement 1 minute à pied du métro Ampère. Copropriété de 19 lots. Charges annuelles : 2097 euros.
Voir plus

Référence: VL2569
Bien en copropriété. Nombre de lots : 19. Charges de copropriété : 2097 €.
Honoraires à la charge du vendeur.
Barème des honoraires
DPE
A
B
C
D
E
F
G
GES
A
B
C
D
E
F
G
Commerce à LYON-2E
Commerce à LYON-2E
Commerce à LYON-2E
Commerce à LYON-2E
Commerce à LYON-2E
Commerce à LYON-2E
Commerce à LYON-2E
Commerce à LYON-2E
Commerce à LYON-2E
Commerce à LYON-2E
Géorisques

Les informations sur les risques auxquels ce bien est exposé sont disponibles sur le site Géorisques : www.georisques.gouv.fr

Ce site est protégé par hCaptcha Politique de confidentialité et Conditions d’utilisation s’appliquent.

En poursuivant votre navigation sans modifier vos paramètres, vous acceptez l'utilisation de cookies susceptibles de réaliser des statistiques de visite. Cliquez ici pour plus d'informations