Appartement neuf - seyssel - 3 pièces de 68,22 m² + terrasse + poss garage et place de stationnement

— Seyssel 01420 —
227 900 €
68 m²
3 pièces
ascenseur

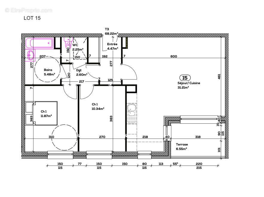
APPARTEMENT NEUF - SEYSSEL - 3 pièces de 68,22 m² + TERRASSE + poss GARAGE et PLACE DE STATIONNEMENT Vous rêvez d'un foyer alliant confort, espace et sérénité ? Ne cherchez plus, ce magnifique appartement de 68,22 m² est fait pour vous ! Cet appartement se compose d'une pièce de vie s'ouvrant sur une terrasse, de deux chambres, d'une salle de bains et de WC séparés. Située dans la charmante commune de SEYSSEL, cet appartement est l'endroit idéal pour vivre, avec toutes les commodités tout en habitant un environnement paisible et verdoyant. Pour plus de renseignements, n'hésitez pas à nous retrouver au 38 avenue du Parmelan, 74000 ANNECY ou nous contacter par téléphone au [Coordonnées masquées] ou par e-mail : [Coordonnées masquées]. Les informations sur les risques auxquels ce bien est exposé sont disponibles sur le site: www.georisque.gouv.fr Copropriété de 64 lots - dont 32 lots habitation.
Voir plus

Référence: 1071
Bien en copropriété. Nombre de lots : 64.
Barème des honoraires
Appartement à SEYSSEL
Appartement à SEYSSEL
Géorisques

Les informations sur les risques auxquels ce bien est exposé sont disponibles sur le site Géorisques : www.georisques.gouv.fr

Ce site est protégé par hCaptcha Politique de confidentialité et Conditions d’utilisation s’appliquent.

En poursuivant votre navigation sans modifier vos paramètres, vous acceptez l'utilisation de cookies susceptibles de réaliser des statistiques de visite. Cliquez ici pour plus d'informations