Bénéficiez des services de nos partenaires locaux soigneusement sélectionnés
pour vous accompagner dans votre parcours d'achat immobilier

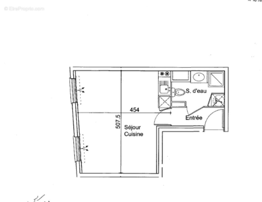
Studio 28 m² – lumineux – tram t6 – garage en sus

— Lyon-3e 69003 —
139 000 €
28 m²
1 pièce
ascenseur

Nos partenaires locaux
LES CLÉS D’ALEXIA vous propose ce studio de 28 m² situé au 4e étage avec ascenseur d’une résidence récente, sécurisée et bien entretenue, au 162 route de Genas.
Un emplacement pratique et recherché

Le tramway T6 se situe au pied de l’immeuble et les commerces sont accessibles immédiatement, offrant un quotidien simple et fonctionnel.

Une pièce de vie lumineuse et facile à aménager
D’environ 20 m², elle bénéficie de deux grandes fenêtres apportant une belle luminosité.

Son agencement permet d’organiser distinctement un espace nuit, un coin séjour et un espace repas ou bureau, comme illustré par le home staging proposé.

Une cuisine intégrée et fonctionnelle
Discrète et bien pensée, elle s’intègre naturellement à la pièce sans empiéter sur les volumes de vie.

Confort et prestations
Double vitrage
Chauffage individuel électrique
DPE en C permettant une bonne maîtrise des charges
Copropriété récente sans travaux à prévoir

Les plus
Possibilité d’acquérir un garage box en supplément au prix de 20 000 €, un véritable atout dans le secteur
Ce bien conviendra parfaitement pour un premier achat ou un investissement locatif, avec un loyer meublé estimé à environ 650 € par mois.

Contact
Jérémy Chaize
LES CLÉS D’ALEXIA
[Coordonnées masquées]
RSAC Lyon n° 918 262 908
Voir plus

Référence: 86687784
DPE
A
B
C
D
E
F
G
GES
A
B
C
D
E
F
G
Appartement à LYON-3E
Appartement à LYON-3E
Appartement à LYON-3E
Appartement à LYON-3E
Appartement à LYON-3E
Appartement à LYON-3E
Appartement à LYON-3E
Géorisques

Les informations sur les risques auxquels ce bien est exposé sont disponibles sur le site Géorisques : www.georisques.gouv.fr

Ce site est protégé par hCaptcha Politique de confidentialité et Conditions d’utilisation s’appliquent.

En poursuivant votre navigation sans modifier vos paramètres, vous acceptez l'utilisation de cookies susceptibles de réaliser des statistiques de visite. Cliquez ici pour plus d'informations