Bénéficiez des services de nos partenaires locaux soigneusement sélectionnés
pour vous accompagner dans votre parcours d'achat immobilier

Appartement 41 m² à Aubervilliers

— Aubervilliers 93300 —
139 000 €
41 m²
2 pièces

Nos partenaires locaux
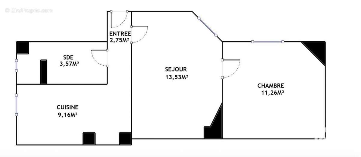
Iad France - Adeline Zammit ([Coordonnées masquées]) vous propose : Au sein d'une petite copropriété des années 1930, idéalement située, découvrez cet agréable appartement de type F2. Le bien se compose d'une entrée, d'un séjour lumineux, d'une chambre, d'une cuisine indépendante, ainsi que d'une salle d'eau avec WC. L'appartement bénéficie d'une proximité immédiate aux commerces, transports et commodités. Secteur bien desservi : accès rapide aux axes principaux et aux transports en commun. Appartement Idéal pour une première acquisition ou investissement locatif. La présente annonce immobilière vise 1 lot principal situé dans une copropriété formant 7 lots au total ne faisant l'objet d'aucune procédure en cours et d'un montant de charges d'environ 36.67 ¤ par mois (soit 440.04 ¤ annuel) déclaré par le vendeur. Honoraires d'agence à la charge du vendeur. Information d'affichage énergétique sur ce bien : classe ENERGIE F indice 396 et classe CLIMAT C indice 13. Les informations sur les risques auxquels ce bien est exposé sont disponibles sur le site Géorisques : www.georisques.gouv.fr. La présente annonce immobilière a été rédigée sous la responsabilité éditoriale de Mlle Adeline Zammit EI (ID 51788), mandataire indépendant en immobilier (sans détention de fonds), agent commercial de la SAS I@D France immatriculé au RSAC de BOBIGNY sous le numéro 950941773, titulaire de la carte de démarchage immobilier pour le compte de la société I@D France SAS. Le présent bien est commercialisé dans le cadre d'une délégation de mandat. Retrouvez tous nos biens sur notre site internet. www.iadfrance.fr.Informations LOI ALUR : Soumis au régime de copropriété. Nombre de lots : 7. Quote part annuelle(moyenne) : 440.04 euros. Honoraires charge vendeur. (gedeon_6727_32565995)
Voir plus

Référence: 1933604
Bien en copropriété. Nombre de lots : 7. Charges de copropriété : 440 €.
Honoraires à la charge du vendeur.
Barème des honoraires
DPE
A
B
C
D
E
F
G
GES
A
B
C
D
E
F
G
Photo 1 - Appartement à AUBERVILLIERS
Photo 1
Photo 2 - Appartement à AUBERVILLIERS
Photo 2
Photo 3 - Appartement à AUBERVILLIERS
Photo 3
Photo 4 - Appartement à AUBERVILLIERS
Photo 4
Photo 5 - Appartement à AUBERVILLIERS
Photo 5
Géorisques

Les informations sur les risques auxquels ce bien est exposé sont disponibles sur le site Géorisques : www.georisques.gouv.fr

Ce site est protégé par hCaptcha Politique de confidentialité et Conditions d’utilisation s’appliquent.

En poursuivant votre navigation sans modifier vos paramètres, vous acceptez l'utilisation de cookies susceptibles de réaliser des statistiques de visite. Cliquez ici pour plus d'informations