1. Accueil
  2. > Commerces à vendre
  3. > Hautes-Alpes (05)
  4. > Briancon

Commerces à vendre à BRIANCON (05)

20251125_102625 - Commerce à BRIANCON
Commerce 455m² à briancon
BRIANCON
balcon/terrasseascenseuraccès handicapé
À VENDRE - FONDS DE COMMERCE RESTAURANT ? ? Emplacement stratégique - Axe Grenoble / Marseille / Italie Découvrez ce restaurant exceptionnel, entièrement rénové, situé dans une zone ultra passant ...
450 000 €
BL Agents Immobiliers
20251121_105300 - Commerce à BRIANCON
Commerce 220m² à briancon
BRIANCON
? LOCAL COMMERCIAL / ENTREPÔT - PLEIN CENTRE DE BRIANÇON Placement idéal - Accès facile - Nombreuses possibilités d'exploitation Découvrez ce bâtiment rare à la vente, parfaitement situé en ...
495 000 €
BL Agents Immobiliers
Commerce à BRIANCON
Fdc salon de coiffure centre ville
BRIANCON
Cause retraite Pas de salarié Petit loyer Emplacement N°1 Materiel en très bon etat Clientele fidele Surface RDC 35,40 m2 Mezzanine 22m2 115,000 € Honoraires d'agence non inclus - Honoraires ...
123 000 €
EXP REALTY
Commerce à BRIANCON
Vente fonds de commerce - bar-restaurant
BRIANCON
RARE A LA VENTE / FONDS DE COMMERCE - BAR-RESTAURANT-CREPERIE-GLACIER TRES BEL EMPLACEMENT pour ce bar-restaurant avec licence 4 implanté depuis de nombreuses années. Très forte fréquentation tour ...
129 000 €
Vauban Immobilier
Commerce à BRIANCON
Murs commerciaux à briançon centre ville
BRIANCON
Vous êtes locataire de votre bureau, institut, cabinet ou boutique et vous souhaitez devenir propriétaire ? Lisez attentivement cette annonce ! À vendre, en exclusivité, murs commerciaux de 60 m2 ...
200 000 €
Agence Immobilière Géraldine Jullien
Commerce à BRIANCON
Entrepôts centre ville briançon 667m2
BRIANCON
Premium emplacement grande hauteur : 4m08 Vitrine, accès total RDC Ouvertures existantes Charges très faibles Pas d'amiante Fonctionnel et divisible (actuellement 4 lots) mais pas de vente a ...
1 286 400 €
EXP REALTY
g (3) - Commerce à BRIANCON
Commerce 80m² à briancon
BRIANCON
parkingaccès handicapé
Opportunité unique, je vous propose d'acquérir un fond de commerce. Situé à Briançon (05100), ce fond de commerce de 50m2 + 50 m2 de terrasse bénéficie d'un emplacement idéal dans la zon ...
150 000 €
BL Agents Immobiliers
Commerce à BRIANCON
Commerce 45m² à briancon
BRIANCON
EXCLUSIVITE ! Briançon Hyper-Centre, idéalement situé, rue commerçante, très bonne visibilité, local commercial avec vitrine sur rue. Grande pièce avec vitrine, bureau fermé à l'arrière ave ...
159 000 €
Commerce à BRIANCON
Fonds de commerce cigarettes électroniques & cbd
BRIANCON
parking
À vendre : fonds de commerce de cigarettes électroniques et de produits bien-être à base de CBD. Belle opportunité entrepreneuriale ! Commerce à reprendre clé en main, rentable et bien implanté, ...
88 500 €
Capifrance
Commerce à BRIANCON
Local commercial à vendre - rendement potentiel de 14% net
BRIANCON
parkingascenseur
À vendre : ensemble de deux locaux commerciaux idéalement situés à l'une des entrées du centre commercial de la Grande Boucle. Chaque local offre une surface d'environ 32 m², avec la po ...
88 500 €
Capifrance
Photo 1 - Commerce à BRIANCON
Commerce 34m² à briancon
BRIANCON
Droit au bail à céder pour ce magasin spécialisé dans le vente de produits de bien-être.Les informations sur les risques auxquels ce bien est exposé sont disponibles sur le site Géorisques : www.g ...
17 500 €
Safti
Photo 1 - Commerce à BRIANCON
Commerce 63m² à briancon
BRIANCON
Idéalement situé à deux pas de la collégiale, en plein coeur de la cité historique de Briançon, ce local commercial offre une belle opportunité pour votre activité.D'une superficie totale d&# ...
75 000 €
Safti
Commerce à BRIANCON
Restaurant de charme n°1 avis client serre-chevalier
BRIANCON
1. **Emplacement exceptionnel** : Au cœur de la cité UNESCO de Briançon, emplacement recherché et touristique. 2. **Décoration et équipements haut de gamme** : Ambiance montagne authentique, mobil ...
499 000 €
EXP REALTY
Commerce à BRIANCON
Restaurant rapide cité unesco matériel tout neuf
BRIANCON
Situé au cœur de la cité Vauban, classée au patrimoine mondial de l'UNESCO, ce restaurant bénéficie de l'attractivité touristique exceptionnelle de Briançon. Établissement saisonnier id ...
95 000 €
EXP REALTY
Commerce à BRIANCON
Magnifique fonds de commerce de restaurant à briançon
BRIANCON
À vendre : Magnifique restaurant avec l'une des plus belles terrasse de Briançon. Emplacement exceptionnel en centre-ville, à deux pas des remontées mécaniques. Excellente visibilité. Clientè ...
250 000 €
Capifrance
Commerce à BRIANCON
Fonds de commerce restaurant à briançon
BRIANCON
En Exclusivité, situé en plein centre de la vieille ville de Briançon, magnifique restaurant entièrement rénové en 2023. Ce fonds de commerce exploité à l'année, représente une belle opportu ...
157 000 €
Capifrance
Commerce à BRIANCON
Fonds de commerce magasin de sport – emplacement n°1 briancon
BRIANCON
À vendre : fonds de commerce d'un magasin spécialisé dans la vente, la location et l'entretien de vélos.
 Libre de toute enseigne. Emplacement exceptionnel en plein cœur de la toute nou ...
165 000 €
Capifrance
Commerce à BRIANCON
À vendre droit au bail - emplacement premium
BRIANCON
Briançon – Centre-ville, rue principale Situé en plein cœur de Briançon, sur l'artère commerçante principale, ce local bénéficie d'un emplacement de premier choix dans une ville dynamiq ...
198 000 €
EXP REALTY
Commerce à BRIANCON
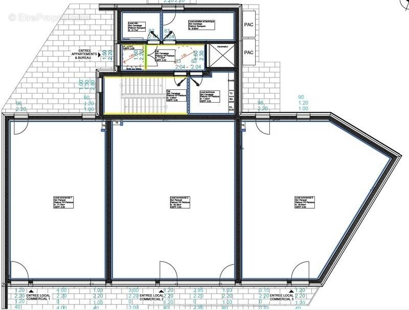
Local tous commerces centre ville de briancon
BRIANCON
Situé au pied d'une toute nouvelle résidence de prestige au cœur de ville de Briançon où l'architecture se distingue par son design élégant et ses finitions de qualité, le local commerci ...
539 760 €
Vauban Immobilier
Commerce à BRIANCON
Local tous commerces + reserve centre ville de briancon
BRIANCON
LOCAL TOUS COMMERCES + RESERVE CENTRE VILLE DE BRIANCON Situé au pied d'une toute nouvelle résidence de prestige au cœur de ville de Briançon où l'architecture se distingue par son desig ...
1 136 928 €
Vauban Immobilier
Commerce à BRIANCON
Fonds de commerce glacier crêperie amorino
BRIANCON
Rare à la vente ! Fonds de commerce d'un glacier sous enseigne, avec emplacement et visibilité exceptionnelle en angle de rues. Dans un quartier en plein développement du centre ville de Br ...
275 000 €
Capifrance
Commerce à BRIANCON
Commerce 163m² à briancon
BRIANCON
parkingascenseur
Local commercial neuf à Briançon L'agence CHEZ VOUS VOTRE AGENCE La Salle Les Alpes vous propose un local commercial neuf de 130 m², idéalement situé à Briançon. Ce bien, construit en 2025, ...
819 000 €
CHEZ VOUS VOTRE AGENCE
Obtenir un prêt immobilier au meilleur taux ?

En poursuivant votre navigation sans modifier vos paramètres, vous acceptez l'utilisation de cookies susceptibles de réaliser des statistiques de visite. Cliquez ici pour plus d'informations