Bénéficiez des services de nos partenaires locaux soigneusement sélectionnés
pour vous accompagner dans votre parcours d'achat immobilier

Maison neuve

— Toulouse 31400 —
399 000 €
87 m² / 154 m²
4 pièces
parkingbalcon/terrassejardin

Nos partenaires locaux
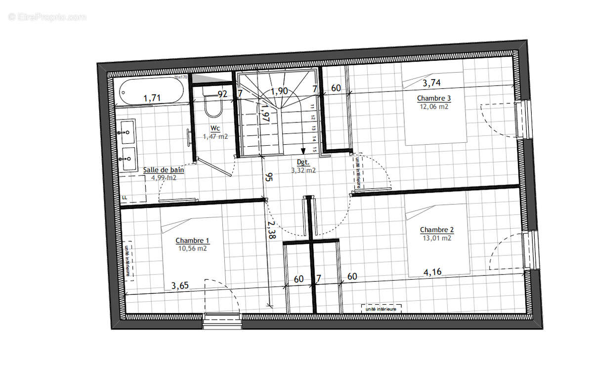
Toulouse Pouvourville, Maison individuelle en duplex composée : - pour la partie basse une place de midi, une salle d'eau wc, un séjour cuisine de 31,77m2 en triple exposition : sud-ouest-est sur terrasse de 9,53m2 et jardin de 154m2 - l'étage dessert le coin nuit composé de 3 chambres avec placard de 10,56, 13,01 et 12,06m2 Prestations soignées : pompe à chaleur air/air, ballon thermodynamique, carrelage 60*60, parquet dans les chambres, volets roulants motorisés ..... Situé sur les hauteurs au Sud de Toulouse, à seulement 6,6 km de la place du Capitole, le quartier de Pouvourville bénéficie d'une situation privilégiée. Il séduit pour sa proximité avec les pôles majeurs d'activité économique de la Métropole. De par son rayonnement international et son image fortement technologique, Toulouse séduit et attire toujours plus avec un patrimoine culturel remarquable et une qualité de vie exceptionnelle. Avec une aire urbaine de 1,3 M d'habitants, Toulouse, capitale de l'Occitanie, occupe une place stratégique, entre Atlantique et Méditerranée, toute proche de Barcelone. cette adresse bénéficie d'un emplacement stratégique et recherché, alliant le calme résidentiel des coteaux de Toulouse à une proximité immédiate avec les pôles d'excellence de la Ville Rose (Rangueil, Université Paul Sabatier, Oncopole). Éducation : Un environnement idéal pour les familles La sectorisation scolaire de l'adresse garantit un parcours éducatif de qualité à quelques minutes seulement : École maternelle et primaire : Groupe scolaire de Pouvourville, reconnu pour son cadre verdoyant. Enseignement secondaire : Collège Bellevue et Lycée Bellevue, établissements de renom accessibles rapidement. Enseignement supérieur : Proximité directe avec le campus scientifique de l'Université Paul Sabatier (Toulouse III). Transports et Mobilité : Une connexion optimale Le quartier profite d'une desserte complète, facilitant les déplacements quotidiens : Bus : Ligne 54 (Gleyze-Vieille) à deux pas, permettant de rejoindre directement le métro. Métro : Accès rapide à la ligne B (stations Université Paul Sabatier ou Ramonville). Innovation : A proximité du Téléo, le téléphérique urbain de Toulouse, reliant l'Oncopole à l'Université Paul Sabatier en un temps record. Réseau routier : Accès aisé au périphérique (sortie 23 Rangueil) et à l'autoroute A61. Commerces et Services : La vie de quartier au rendez-vous Tout est réuni pour simplifier votre quotidien : Commerces de proximité : Coeur de quartier de Pouvourville avec boulangerie, pharmacie, épicerie et services médicaux. Zones commerciales : Proximité des zones de Ramonville-Saint-Agne et de Saint-Orens pour des besoins plus vastes. Loisirs et Nature : Accès immédiat aux sentiers de randonnée de Pech-David pour des moments de détente avec vue panoramique sur les Pyrénées et la Garonne. Atout majeur : Ce secteur de Toulouse 31400 continue de se valoriser grâce à son équilibre parfait entre dynamisme économique (Labège Enova, CHU Rangueil) et sérénité résidentielle. BIEN NON SOUMIS AU DPE Pour tout renseignement : Féänor MAMEO [Coordonnées masquées]
Voir plus

Référence: LBR-001
Honoraires à la charge du vendeur.
Maison à TOULOUSE
Maison à TOULOUSE
Maison à TOULOUSE
Maison à TOULOUSE
Maison à TOULOUSE
Géorisques

Les informations sur les risques auxquels ce bien est exposé sont disponibles sur le site Géorisques : www.georisques.gouv.fr

Ce site est protégé par hCaptcha Politique de confidentialité et Conditions d’utilisation s’appliquent.

En poursuivant votre navigation sans modifier vos paramètres, vous acceptez l'utilisation de cookies susceptibles de réaliser des statistiques de visite. Cliquez ici pour plus d'informations